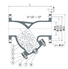
Features -1/2-12(DN15-DN300)
CLASS 150 10K
WP:PN16
W.T.:425℃
We will contact you within two working days, please pay attention to the email with the suffix”@greatwallcontrol.com”
Automated page speed optimizations for fast site performance